Кран пионер на колесах 1 тонна, 380В
Новая Почта
Другие транспортные службы
Курьером по Киеву
Самовывоз
Наличными при получении
Безналичный перевод
Приват 24
WebMoney
Характеристики
|
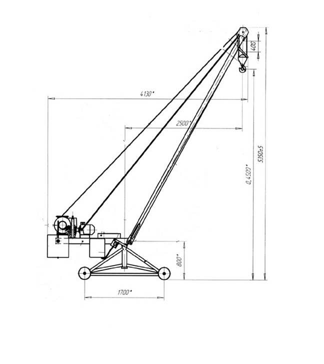
ОСНОВНЫЕ ТЕХНИЧЕСКИЕ ДАННЫЕ И ХАРАКТЕРИСТИКИ КРАНА Общие данные Таблица
|
Описание

Кран стреловой передвижной, грузоподъемностью 0,5 ...1тс марки КЛ-1 предназначен для механизации строительно-монтажных, погрузочных и иных работ. Может устанавливаться на земле и на здании. Режим работы крана — легкий. Конструкция крана позволяет производить подъем грузов при трех положениях стрелы. Кран стреловой КЛ-1 обеспечивает вертикальный и горизонтальный транспорт грузов массой, соответствующей графику грузоподъемности. Кран "Пионер" используется для осуществления механизации погрузочно-разгрузочных и строительно-монтажних работпри сооружениях и зданиях. Кран "Пионер" можно устанавливать на перекрытиях строящихся зданий, крышах сооружений, в котлованах и т.д. Если кран установлен на перекрытии зданий , то высота подъема ограничивается только длинной троса и емкостью канатоукладчика. При помощи подвесного пульта осуществляется управление краном. Основными элементами конструкции крана "Пионер" являються поворотная рама, стрела, опорная рама, электролебедка и пульт управления.
Кран "Пионер" представлен в виде разборной конструкции, что очень удобно при транспортировке и монтаже крана на разных строительных участках. Стреловой кран "Пионер" - это один из наиболее распространненных кранов применяемых в строительстве. Главными отличиями данного крана являються производительность и грузоподъемность.Для выполнения грузоподъемных работ на строительных участках, логистических и складских комплексах используют краны "Пионер". Параметры крана "Пионер" регламентируются по ГОСТ 1451-77. Стреловой кран "пионер" можно оснастить как грузоподъемным крюком, так и другими механизмами. Данный тип кранов выпускается с грузоподъемностью 500, 750, 1000 килограм, но возможно изготовление кранов с большей грузоподъемностью. Условия эксплуатации крана "Пионер": Для установки крана допустимым уклоном площадки является 3°. Допустимая скорость ветра 14 м/с для рабочего состояния либо 33 м/с для нерабочего состояния. Температура окружающей среды -40° С до +40° С .
Компания производит и разрабатывает почти все модификации кранов "Пионер" согласно регламенту ГОСТ 1451-77, как стандартные проекты, так и по заказу клиентов. Возможно производство кранов "Пионер" с механическим или ручным поворотом крана. Также кран по заказу можно изготовить с разборной стрелой. Ходовая рама может быть представлена в стационарном исполнении либо оборудована колесами. Цены, наличие, сроки изготовления и условия поставки кранов "Пионер" Вы можете узнать у наших менеджеров. Телефоны отдела продаж находятся в шапке сайта.